LowTech-LowCost Schaftfräsen
- apaloosa
- Hero Member

- Beiträge: 2018
- Registriert: 05.02.2012, 17:56
- Hat gedankt: 12 Mal
- Hat Dank erhalten: 17 Mal
Re: LowTech-LowCost Schaftfräsen
Klaus,
Danke.
Also befestigen lassen sie sich, Dicke ca. 0,5-07 mm
Wäre vielleicht 'ne Alternative Viele Grüße
Harald
Danke.
Also befestigen lassen sie sich, Dicke ca. 0,5-07 mm
Wäre vielleicht 'ne Alternative Viele Grüße
Harald
Re: LowTech-LowCost Schaftfräsen
Ordentlich scharf und auch recht günstig ja.
Aber stabil genug?
Aber stabil genug?
Grüße Moe
- klaus1962
- Hero Member

- Beiträge: 2279
- Registriert: 05.02.2009, 11:44
- Hat gedankt: 2 Mal
- Hat Dank erhalten: 5 Mal
Re: LowTech-LowCost Schaftfräsen
@apaloosa
Falls Du das hinkriegst, würde ich mich freuen, wenn Du hier ein paar Fotos zeigst.
Die Anleitung soll ja ohnehin zum Nachbau und/oder Verbesserung anregen.
Ich kenne diese Teppichmesser. Aber es sollte Dir vielleicht in meiner Anleitung aufgefallen sein, daß die Klinge ca. 15mm frei über dem V-Ausschnitt (der ja der Spanabfuhr dient) des Mittelblocks "schwebt". Daher kommt auch meine Annahme, das die Teppichklingen zu kurz sind. Abgesehen davon sind sie viel zu dünn und würden wahrscheinlich, sofern sie nicht gleich brechen, ziemlich sicher stark vibrieren. Also falls Du nicht Teppichmesser auftreibst, die wesentlich größer und massiver sind, als ich sie normalerweise kenne, dann würde ich sagen, laß lieber die Finger davon.
Ansonsten müßtest Du diese zumindest auf ein "Trägerblech" von ca.3mm Dicke aufschrauben.
Ein Faktor kommt noch hinzu: Diese Teppichmesser sind normalerweise 2-seitig geschliffen. Das funktioniert so nicht. Damit das Messer genau bis zur Schaftdicke arbeitet muß es einen einseitigen Schliff haben. Du müßtest es also umschleifen.
Tipp: Schau Dir mal einen Bleistiftspitzer an.
Gruß
Klaus
Falls Du das hinkriegst, würde ich mich freuen, wenn Du hier ein paar Fotos zeigst.
Die Anleitung soll ja ohnehin zum Nachbau und/oder Verbesserung anregen.
Ich kenne diese Teppichmesser. Aber es sollte Dir vielleicht in meiner Anleitung aufgefallen sein, daß die Klinge ca. 15mm frei über dem V-Ausschnitt (der ja der Spanabfuhr dient) des Mittelblocks "schwebt". Daher kommt auch meine Annahme, das die Teppichklingen zu kurz sind. Abgesehen davon sind sie viel zu dünn und würden wahrscheinlich, sofern sie nicht gleich brechen, ziemlich sicher stark vibrieren. Also falls Du nicht Teppichmesser auftreibst, die wesentlich größer und massiver sind, als ich sie normalerweise kenne, dann würde ich sagen, laß lieber die Finger davon.
Ein Faktor kommt noch hinzu: Diese Teppichmesser sind normalerweise 2-seitig geschliffen. Das funktioniert so nicht. Damit das Messer genau bis zur Schaftdicke arbeitet muß es einen einseitigen Schliff haben. Du müßtest es also umschleifen.
Tipp: Schau Dir mal einen Bleistiftspitzer an.
Gruß
Klaus
Zuletzt geändert von klaus1962 am 03.04.2012, 09:38, insgesamt 2-mal geändert.
Re: LowTech-LowCost Schaftfräsen
Ein breiter Beitel bringt den Vorteil, dss er von aussen über das Heft positioniert werden kann und nur festgeklemmt werden müsste. Gibt es nicht sogar breite Drechseleisen mit schräger oder sogar balliger Klinge?
Grüße Moe
Re: LowTech-LowCost Schaftfräsen
Oh sehe grad mal wieder was wovon ich keine Ahnung habe... die sind ja meistens scheps :-)
z.B. http://www.ebay.de/itm/STUBAI-HSS-Flach ... 3a5a342180
z.B. http://www.ebay.de/itm/STUBAI-HSS-Flach ... 3a5a342180
Grüße Moe
- apaloosa
- Hero Member

- Beiträge: 2018
- Registriert: 05.02.2012, 17:56
- Hat gedankt: 12 Mal
- Hat Dank erhalten: 17 Mal
Re: LowTech-LowCost Schaftfräsen
Hi Klaus,
war ja nur eine Idee, aber das mit der 2-seitig geschliffenen Klinge könnte, so wie Du das geschrieben hast, Probleme bereiten. Daran hatte ich nicht gedacht
However, werd's bald mal probieren aber erst möchte ich meine Bogen anfangen.
Viele Grüße
war ja nur eine Idee, aber das mit der 2-seitig geschliffenen Klinge könnte, so wie Du das geschrieben hast, Probleme bereiten. Daran hatte ich nicht gedacht
However, werd's bald mal probieren aber erst möchte ich meine Bogen anfangen.
Viele Grüße
Re: LowTech-LowCost Schaftfräsen
hallo !
ein stechbeitel oder stemmeisen mit dieser breite klappt bestimmt , hat auch den schliff dazu !
lg. konni
ein stechbeitel oder stemmeisen mit dieser breite klappt bestimmt , hat auch den schliff dazu !
lg. konni
Re: LowTech-LowCost Schaftfräsen
Moment mal; irr ich mich oder reicht die Klinge mit einer Gesamtsteigung von (Diagonale Leiste)-(Schaftdurchmesser), also bei 9mm Schaft und 13mm Vierkant 4mm Steigung, um die Kanten abzuschälen!?
Oder hab ich den Hirnknoten?
Ah nein die halbe Diagonale des Vierkants ist die Mindeststeigung der Klinge, da diese ja tangential auf dem fertigen Schaft zeigt.
Oder hab ich den Hirnknoten?
Ah nein die halbe Diagonale des Vierkants ist die Mindeststeigung der Klinge, da diese ja tangential auf dem fertigen Schaft zeigt.
Grüße Moe
- klaus1962
- Hero Member

- Beiträge: 2279
- Registriert: 05.02.2009, 11:44
- Hat gedankt: 2 Mal
- Hat Dank erhalten: 5 Mal
Re: LowTech-LowCost Schaftfräsen
Beim Bogenbauen gibts immer mal Zeiten, wo man auf etwas warten muß (zB. Kleber oder Lack trocknen lassen).apaloosa hat geschrieben:However, werd's bald mal probieren aber erst möchte ich meine Bogen anfangen.
Da sind solche kleinen Gadgets die ideale Abwechslung um die Wartezeit zu überbrücken.
Gruß
Klaus
- Felsenbirne
- Forenlegende

- Beiträge: 3272
- Registriert: 01.06.2006, 20:38
Re: LowTech-LowCost Schaftfräsen
Hallo Klaus
ich werde mir das Teil nachbauen. Meine Idee ist es ein Hobeleisen im Baumarkt zu kaufen und gleich mit entsprechend schrägem Anschlag zu montieren. Dadurch erspar ich mir das Schrägschleifen. Was meinst Du dazu?
ich werde mir das Teil nachbauen. Meine Idee ist es ein Hobeleisen im Baumarkt zu kaufen und gleich mit entsprechend schrägem Anschlag zu montieren. Dadurch erspar ich mir das Schrägschleifen. Was meinst Du dazu?
Gruss Matthias
Die Menschen haben keine Zeit mehr, irgend etwas kennenzulernen. Sie kaufen sich alles fertig in den Geschäften.
Antoine de Saint-Exupéry (1900-44), frz. Flieger u. Schriftsteller
Die Menschen haben keine Zeit mehr, irgend etwas kennenzulernen. Sie kaufen sich alles fertig in den Geschäften.
Antoine de Saint-Exupéry (1900-44), frz. Flieger u. Schriftsteller
Re: LowTech-LowCost Schaftfräsen
Das hat ich auch gedacht, dann muss nur ein Schlitz in den Ausfuhrkloz um das Eisen schräg zu stellen, gibt evt Konflikt mit der Klemmschraube.
Grüße Moe
- eddytwobows
- Forenlegende

- Beiträge: 4299
- Registriert: 31.05.2009, 12:09
- Hat gedankt: 2 Mal
- Hat Dank erhalten: 6 Mal
Re: LowTech-LowCost Schaftfräsen
Hi Klaus...
Super Idee und Super Anleitung !!
Da fängt es einem doch glatt an, in den Fingern zu jucken und der Drang, auf der Stelle in die Werkzeughöhle zu toben, wird fast unwiderstehlich...
Zu den Wechselhülsen für verschiedene Schaftdurchmesser...
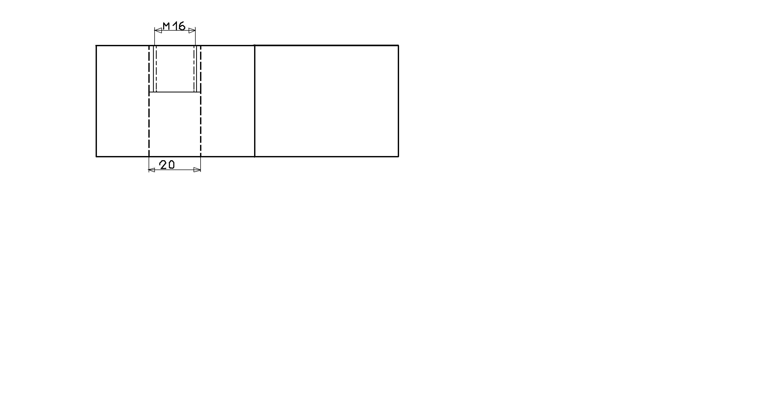
Wenn man die Ein- und Ausgangslöcher auf 20mm aufbohrt, könnte man dort Messing- Gewinderinge fest einsetzen-/ kleben (um beim leichten Low-Budget Prinzip zu bleiben, entsprechende Messing-Reduzierstücke aus dem Sanitärbereich scheinen mir da gut geeignet zu sein...), vorher entspr. Innengewinde schneiden (oder schneiden lassen, M16 sollte eig. reichen), dann brauch man die entsprechenden Wechselstücke einfach nur noch einschrauben... (Zeichnung folgt...)
Alternativ könnte man die Wechselhülsen auch einfach mittels zweier Klemmschrauben und Senkbohrungen (Madenschrauben-Prinzip) durch die Oberkante der Halteklötze befestigen...
Auf jeden Fall vielen vielen Dank fürs posten und zeigen...
LG
etb
Super Idee und Super Anleitung !!
Da fängt es einem doch glatt an, in den Fingern zu jucken und der Drang, auf der Stelle in die Werkzeughöhle zu toben, wird fast unwiderstehlich...
Zu den Wechselhülsen für verschiedene Schaftdurchmesser...
Wenn man die Ein- und Ausgangslöcher auf 20mm aufbohrt, könnte man dort Messing- Gewinderinge fest einsetzen-/ kleben (um beim leichten Low-Budget Prinzip zu bleiben, entsprechende Messing-Reduzierstücke aus dem Sanitärbereich scheinen mir da gut geeignet zu sein...), vorher entspr. Innengewinde schneiden (oder schneiden lassen, M16 sollte eig. reichen), dann brauch man die entsprechenden Wechselstücke einfach nur noch einschrauben... (Zeichnung folgt...)
Alternativ könnte man die Wechselhülsen auch einfach mittels zweier Klemmschrauben und Senkbohrungen (Madenschrauben-Prinzip) durch die Oberkante der Halteklötze befestigen...
Auf jeden Fall vielen vielen Dank fürs posten und zeigen...
LG
etb
- Dateianhänge
- klaus1962
- Hero Member

- Beiträge: 2279
- Registriert: 05.02.2009, 11:44
- Hat gedankt: 2 Mal
- Hat Dank erhalten: 5 Mal
Re: LowTech-LowCost Schaftfräsen
Natürlich kann man alles mögliche daran verbessern.
Ich hab nur dieses mal gaaaaanz bewußt auf aufwendige oder maschinelle Ansprüche verzichtet, (...nö nicht wegen der Fastenzeit) damit es nicht heißt, "das kann ich ja nicht nachbauen, weil ich die XXX-Maschine nicht hab."
@mschwanner
Das mit einem schrägliegenden Hobelmesser oder Stechbeitel könnte schon funktionieren. Mußt halt probieren, wieviel Platz zum Schwenken bis zum Befestigungsbolzen bleibt.
Du sollst aber nix neues kaufen. Stell mal Deine Werkstatt auf den Kopf, dann wirst Du sicher etwas brauchbares finden, das sich zu einer Klinge verwursten läßt.
... das schont den Geldbeutel
und die Nerven, falls die bessere Hälfte mal wieder über ein neues Spielzeug aus dem Bau/Werzeugmarkt nörgelt
@eddy
Na klar, ist so eine Messing-Steckhülsen-Geschichte eine tolle Sache.
Aber Du hast ja auch eine Drehbank. Das ist unsportlich !!!
Gruß
Klaus
- Felsenbirne
- Forenlegende

- Beiträge: 3272
- Registriert: 01.06.2006, 20:38
Re: LowTech-LowCost Schaftfräsen
@Klaus
Eddy und ich wir schmieden bei eddy die Klingen! Das teuerste wird das Bier und das Grillfleisch sein.
Und deine Ideen sind immer geil!!
Eddy und ich wir schmieden bei eddy die Klingen! Das teuerste wird das Bier und das Grillfleisch sein.
Und deine Ideen sind immer geil!!
Gruss Matthias
Die Menschen haben keine Zeit mehr, irgend etwas kennenzulernen. Sie kaufen sich alles fertig in den Geschäften.
Antoine de Saint-Exupéry (1900-44), frz. Flieger u. Schriftsteller
Die Menschen haben keine Zeit mehr, irgend etwas kennenzulernen. Sie kaufen sich alles fertig in den Geschäften.
Antoine de Saint-Exupéry (1900-44), frz. Flieger u. Schriftsteller
- eddytwobows
- Forenlegende

- Beiträge: 4299
- Registriert: 31.05.2009, 12:09
- Hat gedankt: 2 Mal
- Hat Dank erhalten: 6 Mal
Re: LowTech-LowCost Schaftfräsen
@Klaus...
He, wieso unsportlich ??
Die Einsteckhülse mit der Madenschraubenbefestigung kann man auch mit der Ständerbohrmaschiene hinkriegen...
(...aber wenn man schon mal ne´ Drehmaschiene rumstehen hat...
)
LG
etb
He, wieso unsportlich ??
Die Einsteckhülse mit der Madenschraubenbefestigung kann man auch mit der Ständerbohrmaschiene hinkriegen...
(...aber wenn man schon mal ne´ Drehmaschiene rumstehen hat...
LG
etb